FIND YOUR PERFECT HOME
Your choice for buying and selling homes in the Niagara Region
$649,900
53170 Willford Road
Wainfleet (Marshville/Winger), Ontario
L0S 1S0
MLS® Number: X12801238
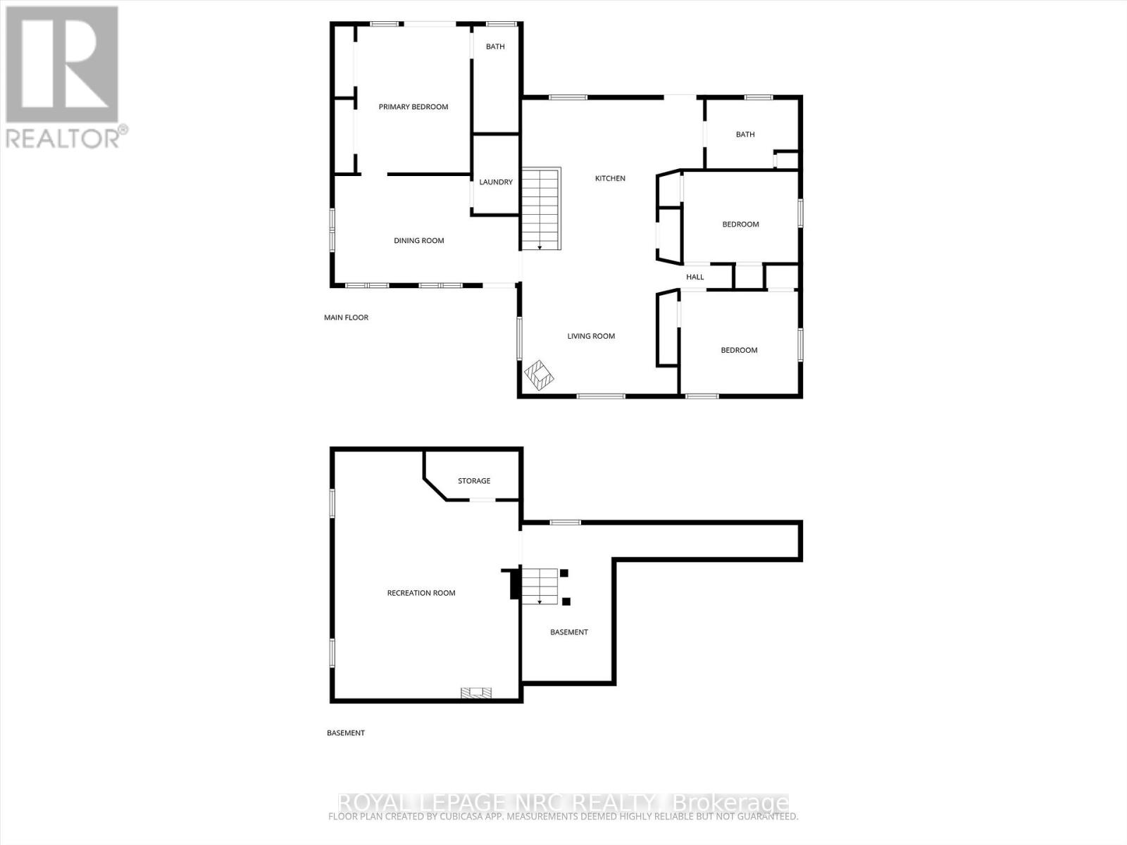
House- 1500 Sq Ft Square Feet
- 3
Bedrooms - 2
Bathrooms









































Property Details
Wake up to views of a tree farm and enjoy coffee in a backyard with no rear neighbours-just open grass and perimeter trees. This isn't just a house; it's the rural lifestyle you've been waiting for, without the renovation headaches. Extensively renovated and expanded, this home features a modern addition that adds a spacious primary bedroom, sparkling new bathroom, and a finished basement(with large windows) perfect for family movie nights, newer custom kitchen. Whether you're escaping the city or looking for something new in the country but close to city amenities, this property offers the space one wants, a rural setting to enjoy and a home ready to move into. (id:6365)
Mortgage Calculators Virtual Tour
- Listing ID: X12801238
- Property Type: Single Family
- List Price: $649,900
- 1500 Sq Ft
Property Location
53170 WILLFORD ROAD, Wainfleet (Marshville/Winger), Ontario L0S 1S0 Canada
View Map on Google
Listing By: ROYAL LEPAGE NRC REALTY
Leave A Message (all fields required)

